




Beach and Pool Dream: Studio Apt in Sea Point
Studio Sea View
Amenities
About This Property
A generator that powers all common areas, passage lights, and elevators.
A portable power station for charging personal devices like phones and laptops.
A UPS to ensure the Wi-Fi connection remains uninterrupted.
An LED light to illuminate the apartment during an outage.
Construction: There is some construction taking place in the surrounding neighborhood. While we strive to provide a peaceful stay, you may hear occasional daytime noise. We appreciate your understanding.
Neighbourhood
The Norfolk Deli is conveniently located right in the building, offering a selection of fresh meals, coffee, and baked goods, along with a curated selection of local artisanal products. They will happily assist with a quick takeaway if you're heading out to explore.
Access
You are also welcome to enjoy all the common areas in the building, which include:
A breathtaking rooftop deck with a communal pool and lounging area
Shared co-working spaces and private boardrooms
A well-equipped shared gym
Delightful communal spaces to socialize and unwind
Convenient self-service laundry facilities
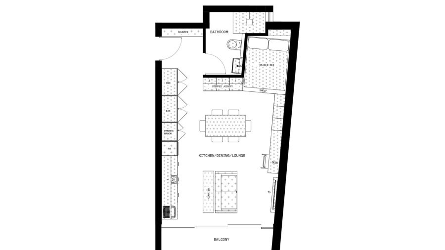
Space
Living & Sleeping: A plush bed with abundant storage ensures restful nights. Unwind after a day of exploring with your favorite shows on the Smart TV.
Kitchen: Channel your inner chef in the impeccably equipped kitchen, featuring modern appliances. For your morning coffee, you'll find both a Nespresso machine and a French press.
Bathroom: The sleek bathroom, complete with a modern walk-in shower, promises a refreshing, spa-like experience every day.
Transit
Where You Will Be
Use code NRdiscount — Get 15% OFF Non-Refundable Stays!