




Mountain & Sea Dual view 2BR Apartment - Concierge
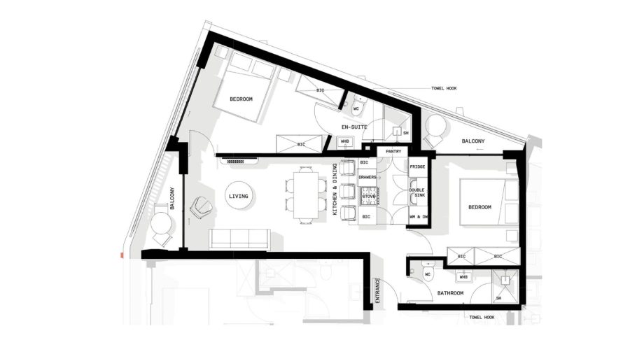
Two Bedroom Mountain View
Amenities
About This Property
•A generator which will power all common areas, passage lights and elevators.
•A portable power station which allow one to connect electrical devices (cell phones, laptops).
•A UPS which backup the Wi-Fi allowing uninterrupted internet connection.
•An LED light that will illuminate the apartment.
•A concierge team to assist with notifications of scheduled power outages using a recommend mobile app.
Neighbourhood
Access
*Limited Paid parking Available subject to availability upon request at check-in
Space
Unwind with your favorite shows on the Smart TV or channel your inner chef in the impeccably equipped kitchen. The sleek bathroom, complete with a modern walk-in shower, promises a spa-like experience every day. Nestled within the prestigious EIGHTY2 ON M, this residence not only offers unparalleled luxury but also supports your well-being with exclusive convenience of self-service laundry facilities, A breathtaking Rooftop Pool & Lounging area, and delightful Communal Spaces to socialize and unwind.
This is your ultimate sanctuary, where elegance meets tranquility.
Transit
Uber: Glide through Cape Town with ease using Uber, the most popular and convenient way to get around. With availability at your fingertips, you're just a tap away from your next adventure.
Public Transport: Discover the city like a local with the MyCiti Bus. With routes spanning across Cape Town, including the airport, and numerous bus stops along Main Road, your journey is both accessible and seamless. Don’t forget to grab a bus card from one of the stations and load credits before boarding to enjoy the ride.
Our dedicated concierge teams are here to enhance your stay, offering insightful guidance and information on any of the above transport options, ensuring you experience the best Cape Town has to offer.
Where You Will Be
Use code BF30 — Get 30% OFF Non-Refundable Stays! Valid for stays 20 Nov – 20 Dec 2025 on non-refundable rates.