




The City Pause - Coastal Living & Ocean Breeze
Amenities
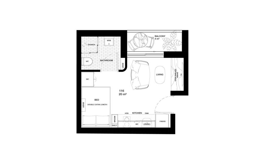
About This Property
This property, and all other Airbnb's in Cape Town, experience loadshedding (scheduled power outages) regulated by the national power utility. To help minimise the impact this has on guests, this apartment has some measures in place for comfort:
•A generator which will power all common areas, passage lights and elevators.
•A portable power station which allow one to connect electrical devices (cell phones, laptops, 2nd screen).
•A UPS backup for the Wi-Fi allowing uninterrupted internet connection.
•An LED light that will illuminate the apartment.
•A concierge team to assist with notifications of scheduled power outages using a recommend mobile app.
Neighbourhood
Access
Space
Transit
Walking: The neighbourhood is pedestrian-friendly, with many attractions, cafes, and shops just a short stroll away. The picturesque Sea Point Promenade is perfect for leisurely walks, jogging, or cycling.
Public Transport: Cape Town's MyCiTi bus service is a reliable and affordable way to travel around the city. The nearest bus stop is just a few minutes' walk from the aparthotel, providing easy access to popular destinations such as the V&A Waterfront, Camps Bay, and the city centre.
Ridesharing: Apps like Uber and Bolt are widely available and offer a convenient way to get around the city. You can easily request a ride from the comfort of your aparthotel and be on your way in no time.
Car Rental: If you prefer to explore at your own pace, several car rental agencies operate in the area. Having a car gives you the freedom to visit nearby attractions such as Table Mountain, the Cape Winelands, and the scenic Cape Peninsula.
Bicycles and Scooters: For a fun and eco-friendly option, consider renting a bicycle or electric scooter. Several rental shops are nearby, and the Sea Point Promenade is a great place to ride while taking in the stunning ocean views.
No matter how you choose to get around, our team is always here to assist with recommendations, directions, and tips to make your stay as enjoyable as possible.
Where You Will Be
Use code NRdiscount — Get 15% OFF Non-Refundable Stays!