




Studio Stay on Main with Rooftop Pool Access
Amenities
About This Property
For the Digital Nomad: Stay productive with high-speed fibre internet backed by a UPS for an uninterrupted connection. The neighborhood also offers many trendy, affordable cafés and restaurants that can serve as an office for the day.
Our dedicated concierge team is available to help you plan your itinerary, make restaurant reservations, or answer any questions about the area.
For those traveling with little ones, family-friendly amenities including a crib and a baby bath are available upon request to make your stay more comfortable. Please let us know in advance if you require them.
Neighbourhood
Access
Shared amenities include:
A stunning rooftop terrace with a swimming pool, offering breathtaking panoramic views of the Atlantic Ocean and Signal Hill.
24/7 on-site security and secure access control for your peace of mind.
A dedicated concierge team available to assist you during your stay.
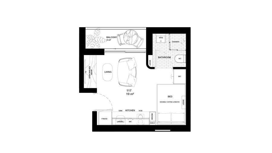
Space
The apartment is fully equipped for your stay and features:
Uninterrupted high-speed fiber WiFi, making it ideal for digital nomads and leisure guests alike.
A comfortable and modern layout designed for solo travelers or a couple.
Transit
Walking: The neighbourhood is pedestrian-friendly, with many attractions, cafes, and shops just a short stroll away. The picturesque Sea Point Promenade is perfect for leisurely walks, jogging, or cycling.
Public Transport: Cape Town's MyCiTi bus service is a reliable and affordable way to travel around the city. The nearest bus stop is just a few minutes' walk from the aparthotel, providing easy access to popular destinations such as the V&A Waterfront, Camps Bay, and the city centre.
Ridesharing: Apps like Uber and Bolt are widely available and offer a convenient way to get around the city. You can easily request a ride from the comfort of your aparthotel and be on your way in no time.
Car Rental: If you prefer to explore at your own pace, several car rental agencies operate in the area. Having a car gives you the freedom to visit nearby attractions such as Table Mountain, the Cape Winelands, and the scenic Cape Peninsula.
Bicycles and Scooters: For a fun and eco-friendly option, consider renting a bicycle or electric scooter. Several rental shops are nearby, and the Sea Point Promenade is a great place to ride while taking in the stunning ocean views.
No matter how you choose to get around, our team is always here to assist with recommendations, directions, and tips to make your stay as enjoyable as possible.
Where You Will Be
Use code NRdiscount — Get 15% OFF Non-Refundable Stays!