




Ocean Blink Studio with Concierge and Rooftop Pool
Amenities
About This Property
For the Digital Nomad: Stay productive with high-speed fibre internet backed by a UPS for an uninterrupted connection. The neighborhood also offers many trendy, affordable cafés and restaurants that can serve as an office for the day.
Our dedicated concierge team is available to help you plan your itinerary, make restaurant reservations, or answer any questions about the area.
For those traveling with little ones, family-friendly amenities including a crib and a baby bath are available upon request to make your stay more comfortable. Please let us know in advance if you require them.
Neighbourhood
Access
In addition, you are invited to enjoy the building's luxurious shared amenities:
Rooftop terrace with a stunning swimming pool and numerous lounge chairs.
Panoramic views of the Atlantic Ocean and Signal Hill from the rooftop.
For your convenience and security:
24/7 on-site security and a dedicated concierge team.
Secure building access control.
Convenient self check-in is available.
Paid parking is offered on the premises.
Space
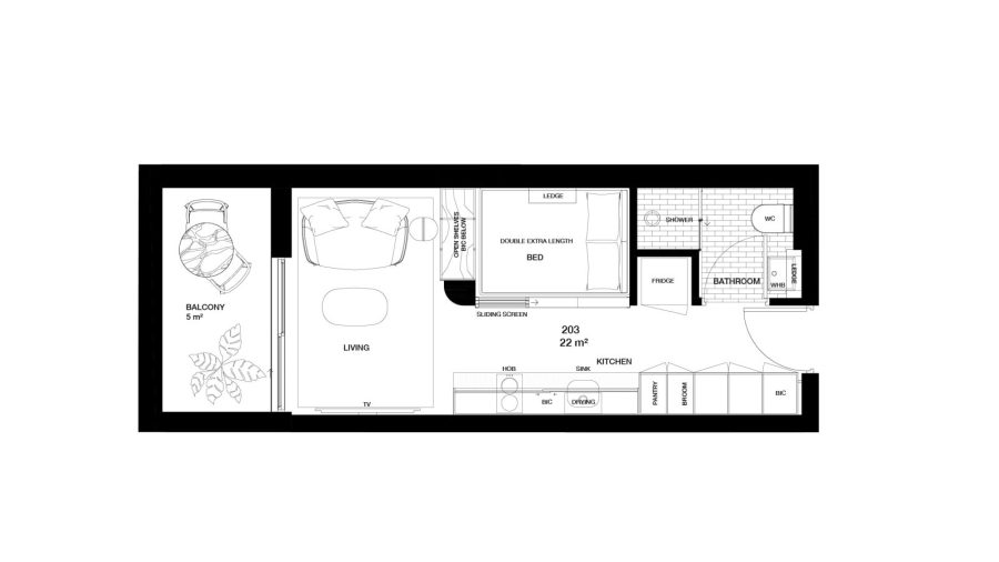
The main living area features a comfortable sofa where you can unwind and stream your favorites on the TV with Netflix. The sleeping area is cleverly separated by a shelving unit for a touch of privacy. A dedicated dining table provides the perfect workspace for digital nomads or a spot to enjoy a meal.
Your fully-equipped kitchenette includes everything you need for a comfortable stay:
Bosch single oven and stove
Refrigerator
Microwave, toaster, and hot water kettle
Coffee maker
Cooking basics, dishes, and silverware
Wine glasses
Step out onto your small, private balcony to enjoy the fresh sea air. The modern bathroom features a clean, white-tiled walk-in shower. For your convenience and peace of mind, the apartment is also equipped with heating and a personal safe.
Transit
Walking: The neighbourhood is pedestrian-friendly, with many attractions, cafes, and shops just a short stroll away. The picturesque Sea Point Promenade is perfect for leisurely walks, jogging, or cycling.
Public Transport: Cape Town's MyCiTi bus service is a reliable and affordable way to travel around the city. The nearest bus stop is just a few minutes' walk from the aparthotel, providing easy access to popular destinations such as the V&A Waterfront, Camps Bay, and the city centre.
Ridesharing: Apps like Uber and Bolt are widely available and offer a convenient way to get around the city. You can easily request a ride from the comfort of your aparthotel and be on your way in no time.
Car Rental: If you prefer to explore at your own pace, several car rental agencies operate in the area. Having a car gives you the freedom to visit nearby attractions such as Table Mountain, the Cape Winelands, and the scenic Cape Peninsula.
Bicycles and Scooters: For a fun and eco-friendly option, consider renting a bicycle or electric scooter. Several rental shops are nearby, and the Sea Point Promenade is a great place to ride while taking in the stunning ocean views.
No matter how you choose to get around, our team is always here to assist with recommendations, directions, and tips to make your stay as enjoyable as possible.
Where You Will Be
Use code NRdiscount — Get 15% OFF Non-Refundable Stays!