




Seashell Cottage Service Apartment with Pool
Compact Studio Mountain View
Amenities
About This Property
Digital Nomads & Workspaces For the digital nomad, THREE43 ON B is fully equipped. The apartment includes a dedicated workspace, and the building offers access to high-speed fibre internet and shared meeting rooms. The vibrant neighborhood also has many trendy, affordable cafés that can serve as an office for the day.
Loadshedding (Power Outages) Like all properties in Cape Town, this building experiences loadshedding (scheduled power outages). To minimize the impact on your stay, we have several solutions in place:
A generator powers all common areas, passage lights, and elevators.
A portable power station in your unit allows you to connect and charge personal devices like phones and laptops.
A UPS backup for the Wi-Fi ensures an uninterrupted internet connection.
An LED light is provided to illuminate the apartment during outages.
Our concierge team will assist with notifications of scheduled power outages to help you plan your day.
Neighbourhood
Pristine beaches are just a 500-meter walk away, and the bustling V&A Waterfront is just a short drive from your doorstep, offering world-class shopping and entertainment.
Access
Your access includes:
A stunning rooftop terrace with a pool and lounging area, all offering panoramic views of the Atlantic Ocean and Signal Hill.
Chic communal spaces and co-working areas perfect for socializing or working.
Convenient self-service laundry facilities.
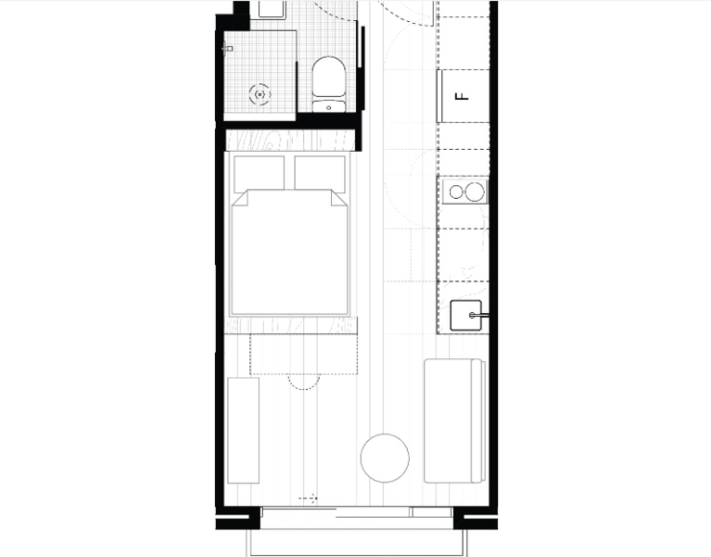
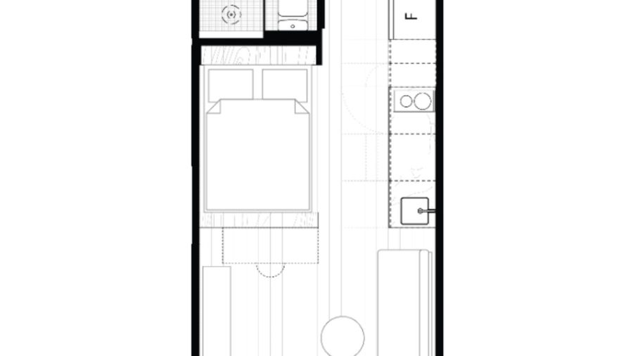
Space
The smart open-plan layout maximizes every inch, integrating the kitchen, dining, and living areas into a harmonious and inviting environment. The cozy sleeping area features a plush bed and clever storage solutions, ensuring restful nights. Relax with your favorite shows on the Smart TV, or prepare delicious meals in the well-equipped kitchen.
The sleek bathroom, with its modern walk-in shower and stylish tiling, provides a spa-like experience every day. A dedicated workspace is also provided for your convenience.
Transit
Where You Will Be
Use code NRdiscount — Get 15% OFF Non-Refundable Stays!