




Tidepool Sea Point Studio, Rooftop and Concierge
Compact Studio Mountain View
Amenities
About This Property
A generator powers all common areas, passage lights, and elevators.
A portable power station is provided in your apartment to charge personal devices like phones and laptops.
A UPS backup ensures the high-speed Wi-Fi connection remains uninterrupted.
An LED light is available to illuminate the apartment during outages.
Our concierge team is happy to assist with notifications of scheduled power outages to help you plan your day.
Neighbourhood
Access
The building provides peace of mind with 24/7 security, a dedicated concierge team, and secure access control. For those working remotely, you can also take advantage of the stylish communal spaces and meeting rooms. Convenient on-site, self-service laundry facilities are also available for your use.
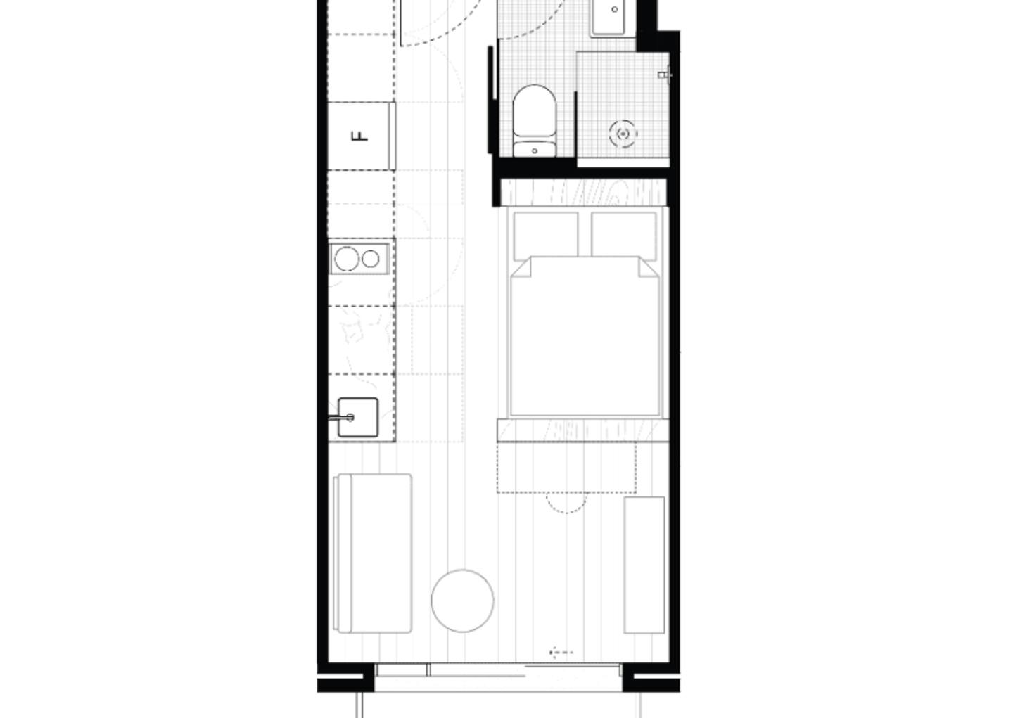
Space
The cozy sleeping area features a plush bed and clever storage solutions for restful nights. In the living space, you can unwind with your favorite shows on the Smart TV or settle in at the dedicated workspace. Uninterrupted, high-speed Wi-Fi makes it ideal for remote work.
Prepare delicious meals in the well-equipped kitchen, complete with a stove, oven, toaster, and cooking basics. The sleek bathroom, featuring a modern walk-in shower, provides a refreshing, spa-like start to your day.
Transit
Where You Will Be
Use code NRdiscount — Get 15% OFF Non-Refundable Stays!